EDIFICIO COMMERCIALE-DIREZIONALE-ARTIGIANALE IN AFFITTO A VICENZA OVEST
Descrizione
IN LOCAZIONE A VICENZA OVEST, ZONA FIERA - COMPLESSO COMMERCIALE - DIREZIONALE - ARTIGIANALE - RIF. 8327
Nel cuore della zona industriale e della Fiera di Vicenza, lungo strada di forte passaggio veicolare, proponiamo intero stabile sviluppato su due piani fuori terra e realizzato su lotto di proprietà di circa 7.800 mq.
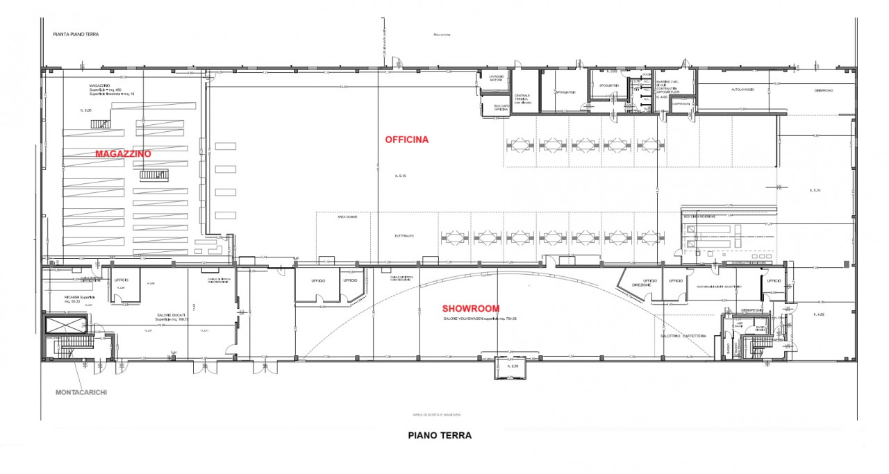
L'immobile, catastalmente un D/8, si sviluppa per 3.500 mq al piano terra dove troviamo un'area espositiva di circa 900 mq con altezza media 3 m e circa 2.600 mq di officina e magazzino con altezza media 5 m.
Al piano primo invece si sviluppano circa 500 mq di uffici ben rifiniti e un ulteriore spazio utilizzato a magazzino/spazio espositivo di 770 mq collegato al piano terra anche con montacarichi.
L'edificio si presenta in maniera impeccabile ed è sempre stato ben manutentato nel corso degli anni.
La caldaia è stata sostituita nel 2023.
Sia sul fronte che sul retro lo stabile gode di ampio parcheggio esclusivo.
Si tratta quindi di una location molto interessante per chi cerca un immobile ben visibile, in posizione strategica, comodissimo al casello di Vicenza Ovest ma anche al centro città.
La destinazione d'uso permette di accogliere svariate attività: fissate un appuntamento per ricevere i dettagli di questa opportunità davvero rara e interessante!
AGENZIA VICENZA Sede di Andrea Marchetti
via Legione Antonini, 146 Vicenza - 0444/963900
www.agenziavicenza.it - marchetti@agenziavicenza.it
Aderente alla Borsa Immobiliare della C.C.I.A.A. di Vicenza
Informazioni aggiuntive
- Mq ufficio
- Mq ufficio
- Mq ufficio
- Mq ufficio
- Totale piani unita
- Totale piani unita
- Totale piani unita
- Totale piani unita
- Mq aree esterne
- Ascensore
- Aria condizionata
- Riscaldamento autonomo
- Ingresso indipendente
- Allarme
- Aree esterne
- Posizione
- Impianto anti incendio
- Porticato
- Soppalco
- Accesso disabili
- Riscaldamento termopompa


















