VILLA IN CLASSE A4 CON GIARDINO E GARAGE DOPPIO IN VENDITA A COSTABISSARA
Descrizione
COSTABISSARA: RECENTISSIMA VILLA IN CLASSE ENERGETICA A4 CON GIARDINO E GARAGE DOPPIO - Rif. 8309
In centro a Costabissara, in posizione molto tranquilla e silenziosa, proponiamo elegante villina inserita in contesto di quattro unità confinanti tra loro solo con il garage.
La casa, costruita nel 2022, è distribuita su 2 livelli fuori terra:
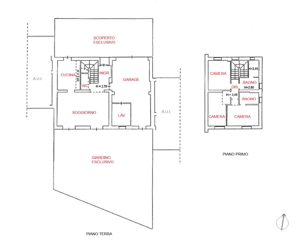
al PIANO TERRA ingresso su ampia e luminosa sala, cucina abitabile, comoda stanza lavanderia finestrata, bagno ospiti e autorimessa di 43 mq, ideale per due macchine, più spazio cantina e, sul retro, un bel giardino esclusivo e ricco di privacy, completo di funzionale pergola dotata di tenda motorizzata.
Davanti alla casa c'è uno spazio esclusivo per poter parcheggiare due auto.
Il PIANO PRIMO presenta tre buone camere da letto, di cui una con bagno esclusivo, ed un ulteriore ampio servizio dotato sia di box doccia che di vasca.
In Classe energetica A4, l'abitazione offre dotazioni e finiture di alto livello:
- Tapparelle motorizzate metalliche .
- Pareti esterne con blocchi "Ytong Sisma Clima"
- Impianto di videocitofono con collegamento Wi-fi
- Pannelli fotovoltaici con 3,1 Kwp
- Presa di ricarica auto elettriche
- Impianto di aspirazione centralizzato
- Impianto di ventilazione meccanica
- Impianto di condizionamento
- Riscaldamento a pompa di calore con sistema a pavimento.
- Serramenti bianchi in pvc antieffrazione.
Le piastrelle in zona giorno sono in gres di dimensione 120x60 cm, mentre la scala, rivestita in legno con parapetto in vetro, risulta molto elegante.
E' una soluzione che combina l'eleganza con il miglior comfort abitativo, il massimo risparmio energetico e spazi ampi e ben vivibili.
Vi aspettiamo in ufficio per illustrarvi al meglio questa soluzione!
AGENZIA VICENZA Sede di Marchetti Andrea
via Legione Antonini, 146 Vicenza - 0444/963900
www.agenziavicenza.it - marchetti@agenziavicenza.it
Aderente alla Borsa Immobiliare della C.C.I.A.A. di Vicenza
Informazioni aggiuntive
- Totale piani unita
- Totale piani unita
- Totale piani unita
- Totale piani unita
- Mq giardino: 230
- Aria condizionata
- Riscaldamento autonomo
- Ingresso indipendente
- Lavanderia
- Cucina
- Soggiorno
- Ripostigli: 1
- Tapparelle motorizzate
- Porta blindata



























