IN LOCAZIONE A VICENZA OVEST: CAPANNONE CATEGORIA CATASTALE D8
Descrizione
CAPANNONE CON UFFICI E AMPIO PIAZZALE ESCLUSIVO, IN LOCAZIONE A VICENZA OVEST - RIF. C8327
Nel cuore della zona industriale e della Fiera di Vicenza, lungo strada di forte passaggio veicolare, proponiamo intero stabile sviluppato su due piani fuori terra e realizzato su lotto di proprietà di circa 7.800 mq.
Si tratta di un'opportunità davvero interessante che permette di accogliere svariate attività: commercio, logistica, stoccaggio e molto altro. Fissate un appuntamento per ricevere i dettagli di questa opportunità davvero rara e interessante!
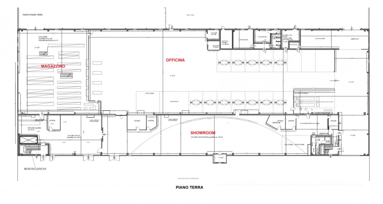
PIANO TERRA di totali 3.500 mq: area espositiva di circa 900 mq (H media = 3 m) e circa 2.600 mq di officina e magazzino (H media = 5 m).
PIANO PRIMO: circa 500 mq di uffici ben rifiniti e un ulteriore spazio utilizzato a magazzino/spazio espositivo di 770 mq collegato al piano terra anche con MONTACARICHI.
L'edificio si presenta in maniera impeccabile ed è sempre stato ben manutentato nel corso degli anni. La caldaia è stata sostituita nel 2023. Sia sul fronte che sul retro lo stabile gode di ampio PARCHEGGIO ESCLUSIVO.
Si tratta quindi di una location molto interessante per chi cerca un immobile ben visibile, in posizione strategica, comodissimo al casello di Vicenza Ovest, ma anche al centro città.
AGENZIA VICENZA Sede di Andrea Marchetti
via Legione Antonini, 146 Vicenza - 0444/963900
www.agenziavicenza.it - marchetti@agenziavicenza.it
Aderente alla Borsa Immobiliare della C.C.I.A.A. di Vicenza
Informazioni aggiuntive
- Mq ufficio
- Mq ufficio
- Mq ufficio
- Mq ufficio
- Totale piani unita
- Totale piani unita
- Totale piani unita
- Totale piani unita
- Mq aree esterne
- Ascensore
- Aria condizionata
- Riscaldamento autonomo
- Ingresso indipendente
- Allarme
- Aree esterne
- Posizione
- Impianto anti incendio
- Porticato
- Soppalco
- Accesso disabili
- Riscaldamento termopompa






















