NUOVA VILLA BIFAMILIARE IN VENDITA A VICENZA NORD
Descrizione
ABITAZIONE AFFIANCATA IN CLASSE A4, IN COSTRUZIONE A VICENZA VERSANTE NORD - RIF. 8311-2
E’ iniziata la costruzione di 2 bifamiliari in posizione tranquilla, ma non isolata, a Vicenza, a 2 minuti dal casello autostradale di Vicenza Nord.
Sorgeranno 4 moderne abitazioni dotate di ogni comfort perfette per le esigenze delle famiglie di oggi.
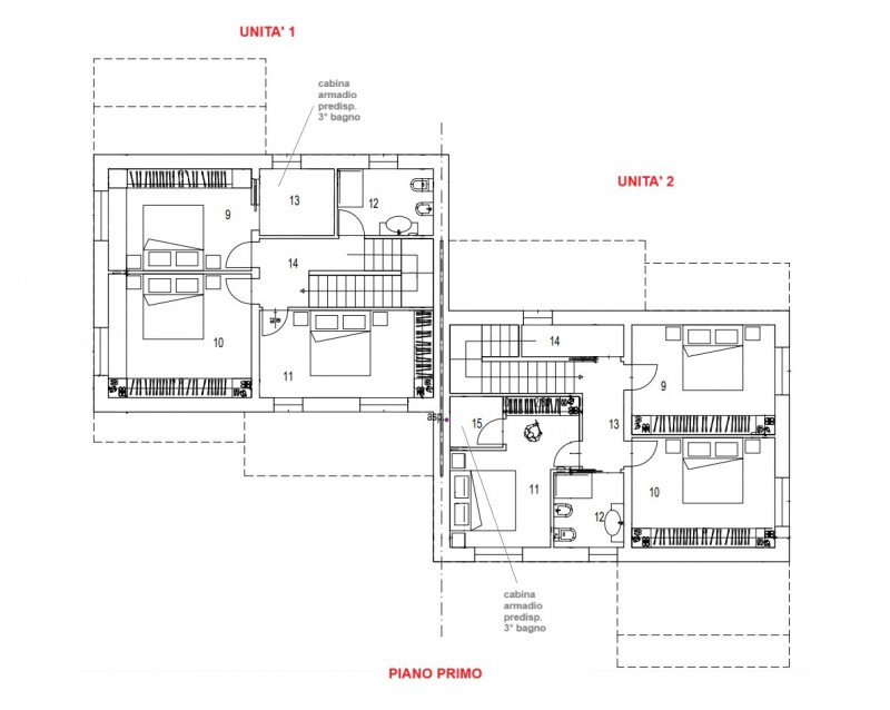
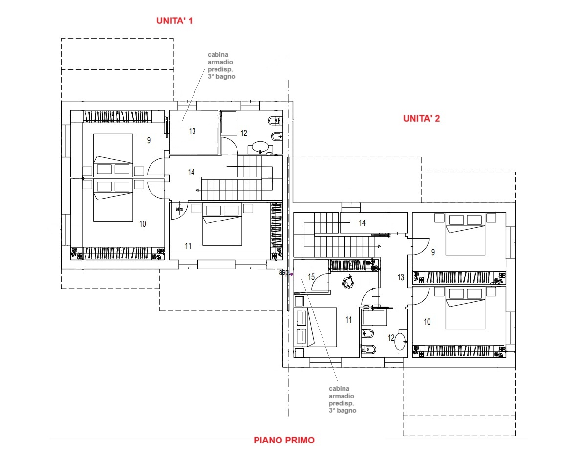
L'UNITA' 2 che presentiamo in questa scheda, sviluppa a piano terra e primo circa 169 mq abitativi + 6,80 mq di portico esclusivo + 262 mq di area scoperta esclusiva.
Completa la proprietà un garage doppio di 30 mq, dotato di riscaldamento a pavimento, e un posto auto scoperto.
Prezzo: € 450.000. Consegna "chiavi in mano" prevista ad AGOSTO 2027.
A totale garanzia del vostro acquisto sarà predisposto preliminare notarile trascritto all'Ufficio dei Registri Immobiliari e verrà fornita polizza fideiussoria sui pagamenti, stipulata con primaria compagnia assicurativa.
Vi aspettiamo in Agenzia per potervi illustrare tutti i particolari, consegnarvi la documentazione e portarvi in visita al sito!
AGENZIA VICENZA Sas di Marchetti Andrea
via Legione Antonini 146 Vicenza - 0444.963900
Aderente alla Borsa Immobiliare della C.C.I.A.A. di Vicenza
www.agenziavicenza.it - marchetti@agenziavicenza.it
Informazioni aggiuntive
- Totale piani unita
- Totale piani unita
- Totale piani unita
- Totale piani unita
- Mq giardino: 262
- Riscaldamento autonomo
- Ingresso indipendente
- Riscaldamento a pavimento
- Soggiorno angolo cottura
- Lavanderia
- Predisposizione aria condizionata
- Predisposizione allarme
- Pannelli fotovoltaici
- Porticato
- Ripostigli: 1
- Accesso disabili
- Animali ammessi
- Cantina
- Tapparelle motorizzate
- Porta blindata











