VELO D'ASTICO: AFFITTASI OTTIMO CAPANNONE INDUSTRIALE DI 2.000MQ + UFFICI DI 450MQ
Descrizione
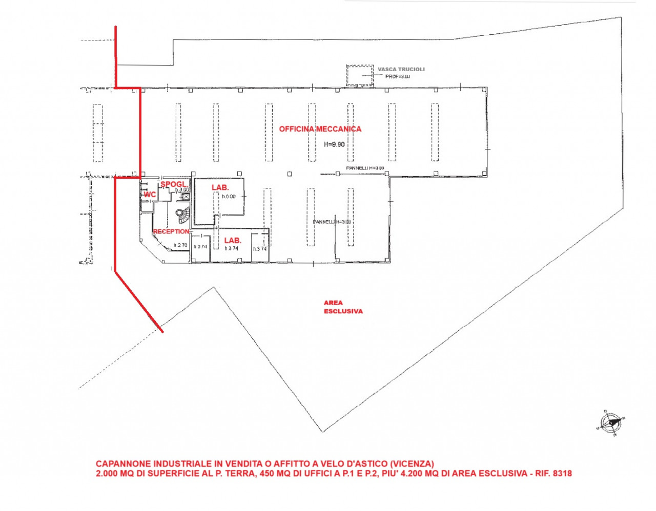
CAPANNONE INDUSTRIALE DI 2.000 MQ CON UFFICI DI 450 MQ E SCOPERTO ESCLUSIVO - Rif. A8318
Proponiamo in locazione un capannone industriale situato nel Comune di Velo d'Astico, ideale per aziende che necessitano di ampi spazi e funzionalità. L'immobile si trova nella zona produttiva del paese, facilmente accessibile sia dalla viabilità principale che dai collegamenti con le principali arterie stradali della provincia di Vicenza.
Il capannone vanta una superficie complessiva di circa 2.500 mq + area scoperta di 4.200 mq, completamente open space e caratterizzato da altezze generose ed eccellente luminosità naturale grazie alle numerose finestrature presenti su entrambi i lati dell'edificio. La struttura è dotata di impianto antincendio con tubazioni visibili e predisposizioni tecniche moderne, garantendo sicurezza ed efficienza operativa.
Gli ambienti interni sono spaziosi e versatili: l'ampiezza delle aree consente la massima flessibilità per attività produttive, logistiche o deposito merci. Sono presenti portoni sezionali ad apertura rapida ideali anche per il transito agevole dei mezzi pesanti; inoltre alcune zone risultano già attrezzate con fosse tecniche utili all’installazione di macchinari specifici o lavorazioni particolari.
A completamento troviamo eleganti uffici direzionali distribuiti su più livelli collegati tramite scala interna moderna dal design curato (parapetto in vetro), pavimentazione pregiata e grandi superfici vetrate che offrono comfort agli ambienti amministrativi senza rinunciare alla rappresentanza aziendale.
L’immobile non prevede spese condominiali aggiuntive: soluzione perfetta per realtà dinamiche che cercano qualità costruttiva abbinata a contenimento dei costi fissi.
Velo d’Astico si distingue come località strategica tra Alto Vicentino e Trentino meridionale: posizione ottimale sia per chi opera sul territorio regionale sia verso mercati nazionali/internazionali grazie alla vicinanza ai caselli autostradali A31/A22 e servizi logistici efficienti nelle immediate vicinanze.
Non perdere questa opportunità unica!
Per maggiori informazioni o fissare una visita contatta subito la nostra agenzia!
Referente: Marco Comparin cell. 347/9546399.
AGENZIA VICENZA Sas di Marchetti Andrea
via Legione Antonini 146 Vicenza - 0444.963900
Aderente alla Borsa Immobiliare della C.C.I.A.A. di Vicenza
www.agenziavicenza.it - marchetti@agenziavicenza.it
Informazioni aggiuntive
- Mq ufficio
- Mq ufficio
- Mq ufficio
- Mq ufficio
- M altezza immobile
- M altezza immobile
- M altezza immobile
- M altezza immobile
- Totale piani unita
- Totale piani unita
- Totale piani unita
- Totale piani unita
- Mq aree esterne
- Ascensore
- Aria condizionata
- Riscaldamento autonomo
- Ingresso indipendente
- Aree esterne
- Posizione
- Impianto anti incendio
- Cabina elettrica











